みなべ町山内 中古住宅

物件お問い合わせNo:50808 中古戸建
土地 価格 600万円 建物 新築年月 1996年
所在地 和歌山県日高郡みなべ町山内字大目津中1642番17 熱源:流し ガス
土地面積 591.58㎡(178.95坪) 熱源:風呂 ガス
地目 宅地 熱源:洗面化粧 ガス
道路方位1 北西 熱源:コンロ ガス
前面道路種類 私道 各種設備:トイレ 水洗
前面道路幅員 約3m 飲用水 みなべ町上水道
地勢 高台 し尿排水 浄化槽
地型 やや不整形 雑排水 浄化槽
間口 30.83m 駐車場 敷地内
都市計画区域 都市計画区域外 その他 現況 空家
小学校区 みなべ町立南部小学校 引き渡し時期 即時
中学校区 みなべ町立南部中学校 取引態様 仲介
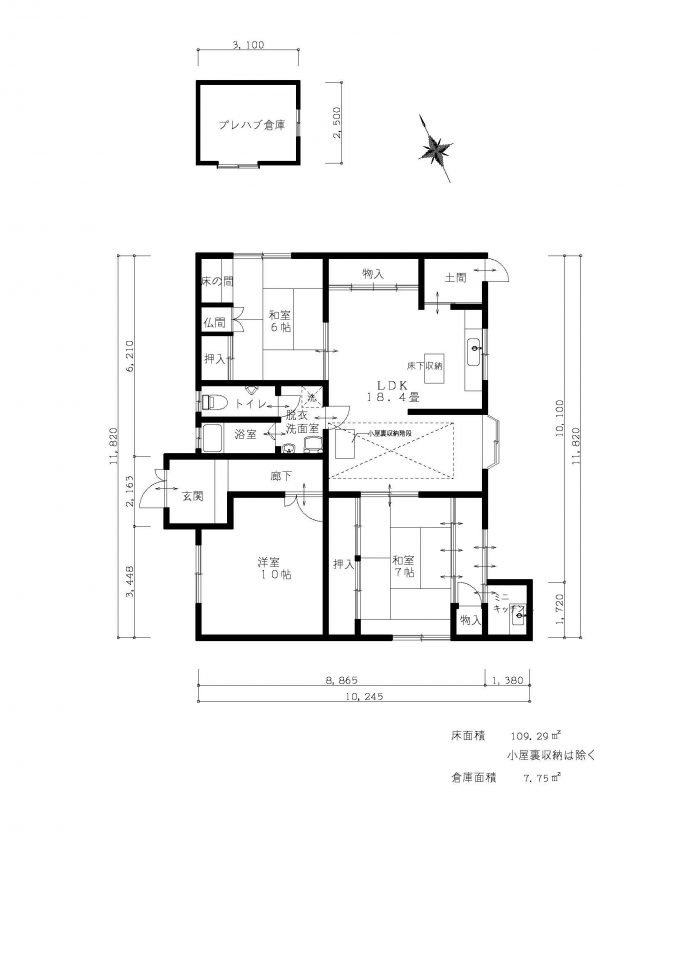
建物 間取り総称 3LDK 仲介手数料 33万円
間取り 和室7 洋室10 和室6 LDK18 浴室 トイレ ミニキッチン 土地権利 所有権
建物面積 107.22㎡(32.43坪) 建物階数 1階
備考1 特定盛土等規制法区域 景観計画区域 屋外広告物規制区域
備考2
物件お問い合わせNo:50808
中古戸建
土地
価格 600万円
所在地 和歌山県日高郡みなべ町山内字大目津中1642番17
土地面積 591.58㎡(178.95坪)
地目 宅地
道路方位1 北西
前面道路種類 私道
前面道路幅員 約3m
地勢 高台
地型 やや不整形
間口 30.83m
都市計画区域 都市計画区域外
小学校区 みなべ町立南部小学校
中学校区 みなべ町立南部中学校
建物
間取り総称 3LDK
間取り 和室7 洋室10 和室6 LDK18 浴室 トイレ ミニキッチン
建物面積 107.22㎡(32.43坪)
新築年月 1996年
熱源:流し ガス
熱源:風呂 ガス
熱源:洗面化粧 ガス
熱源:コンロ ガス
各種設備:トイレ 水洗
飲用水 みなべ町上水道
し尿排水 浄化槽
雑排水 浄化槽
駐車場 敷地内
その他
現況 空家
引き渡し時期 即時
取引態様 仲介
仲介手数料 33万円
土地権利 所有権
建物階数 1階
備考1 特定盛土等規制法区域 景観計画区域 屋外広告物規制区域
備考2